丹凤县医院PCR实验室建设及设备采购项目--安健医特承建!
时间: 2021-09-01 浏览次数:421
丹凤县医院PCR实验室建设及设备采购项目--安健医特承建!
丹凤县医院

丹凤县医院始建于1950年,是一所集医疗、教学、科研、预防为一体的综合性二级甲等医院。是丹凤县急救中心、产科救治中心,临床检验医学、超声影像、伤残鉴定、健康体检中心。
摘自《丹凤县医院公众号》
2020年,新型冠状病毒疫情暴发给我国带来巨大损失,我们目睹了一线人员三级防护下的坚守与奉献,我们悉闻到科研工作者从临床样本中分离出了病毒,看到了电镜下的病毒模样,我们知道病毒有多种传播方式,它真的很“毒”。4月23日中央要求各地要结合新冠疫情防控和检测需求,加强医疗卫生机构实验室建设。三级综合医院均应当建立符合生物安全二级及以上标准的临床检验实验室,具备独立开展新型冠状病毒检测的能力;各级疾控机构和有条件的专科医院、二级医院、独立设置的医学检验实验室也应当加强实验室建设,提高检测能力。
临床基因扩增实验又称PCR实验,是专门用来检验艾滋病、乙型肝炎、禽疫病等病毒感染性疾病的一种检测手段。它可以通过将病毒体内所含的基因进行扩增的方法,测出一些病毒含量不高的感染者体内是否含有特定的病毒。由于该检测方法可以测出普通检验难以检测出的病毒并具有灵敏度高、特异性高、快捷、对样品要求低等优点,因此被临床医生广为认可,已广泛应用于医院的临床诊断和各防疫检测部门的禽疫病诊断。但是,这种实验需要有能保证绝对安全、配置合理的实验室和非常规范的操作为前提。近年来对临床基因扩增检验实验室的建设越来越得到重视,因为它对检测结果的可靠性、准确性和安全性起到至关重要的作用。
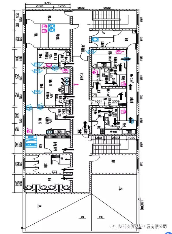
设计布局流程图

我公司秉承“质量第一,客户至上”的原则,有着专业的施工项目小组及完善的售后服务体系,根据医院提出的具体要求进行设计施工,打造一个客户安心,患者舒心的优质环境。安健医特为致力于成为中国一流的医用工程建设服务企业而不断努力!

陕西安健医特工程有限公司,位于西安市,主要从事医院洁净手术部、ICU、CCU病房、血液病房、隔离病房,中心供应室,配液室、实验室等净化工程的设计与施工;DR/DSA/CT/数字胃肠/骨密度/C型臂/SPECT/MR等机房射线防护及屏蔽装饰工程、医疗、工业等方面射线防护工程的设计及施工;核医学、同位素射线性污水处理工程;医用集中供氧系统及智能语音呼叫系统、医用一体化污水处理系统等工程设计及施工。

陕西安健医特工程有限公司始终坚持“以科技为先导”,不断致力于新产品、新技术、新工艺的引进与开发,以建造符合《规范》与《标准》的现代化医院建设为己任。公司拥有完整的测试仪器和专业检测机构合作,为确保每一项工程,每一项技术指标达到要求提供了保障。我们视每一项工程、每一件产品都是“安健医特的形象”。公司将以诚实守信、求真务实、服务至上、开拓创新的精神,创建医院优质工程,与社会各界真诚合作,共创辉煌。


